A.B.S.
Pelletsilo Flexilo Mini with sucking pot/snail box
Normal price Away 3.164,00 złBasic price /Not availableLimited stockAtmos
Atmos pelletilo with a compact design for efficient pellet storage
Normal price Away 1.867,00 złBasic price /Not availableIn stockA.B.S.
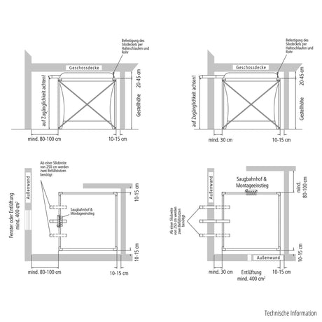
Pelletilo flat floor including frame
Normal price Away 13.316,00 złBasic price /Not availableIn stockA.B.S.
Pelletilo for outside including frame
Normal price Away 34.784,00 złBasic price /Not availableIn stockA.B.S.
A.B.S. Flexilo Standard pellet silo
Normal price Away 0,00 złBasic price /Not availableIn stockAttack
Attack pellet container 500 liters
Normal price 3.701,00 złBasic price /Not availableIn stock